Boyd Anderson
Join Sign In
Refine Search

401 & 403 E Center Street , Jacksonville, AR 72076

$435,000
  • 401 & 403 E Center Street , Jacksonville, AR 72076 Main Photo

50 Total Photos [Click to View All]

New to the Market New Listing
BEDS0 BATHS SQUARE FEET3,382 MLS#26014346
STATUSNew Listing PROPERTY TYPEMulti Unit - Multiple SUBDIVISIONTHE WRIGLEY PLACE ADDITION NEIGHBORHOODJACKSONVILLE

Property Description

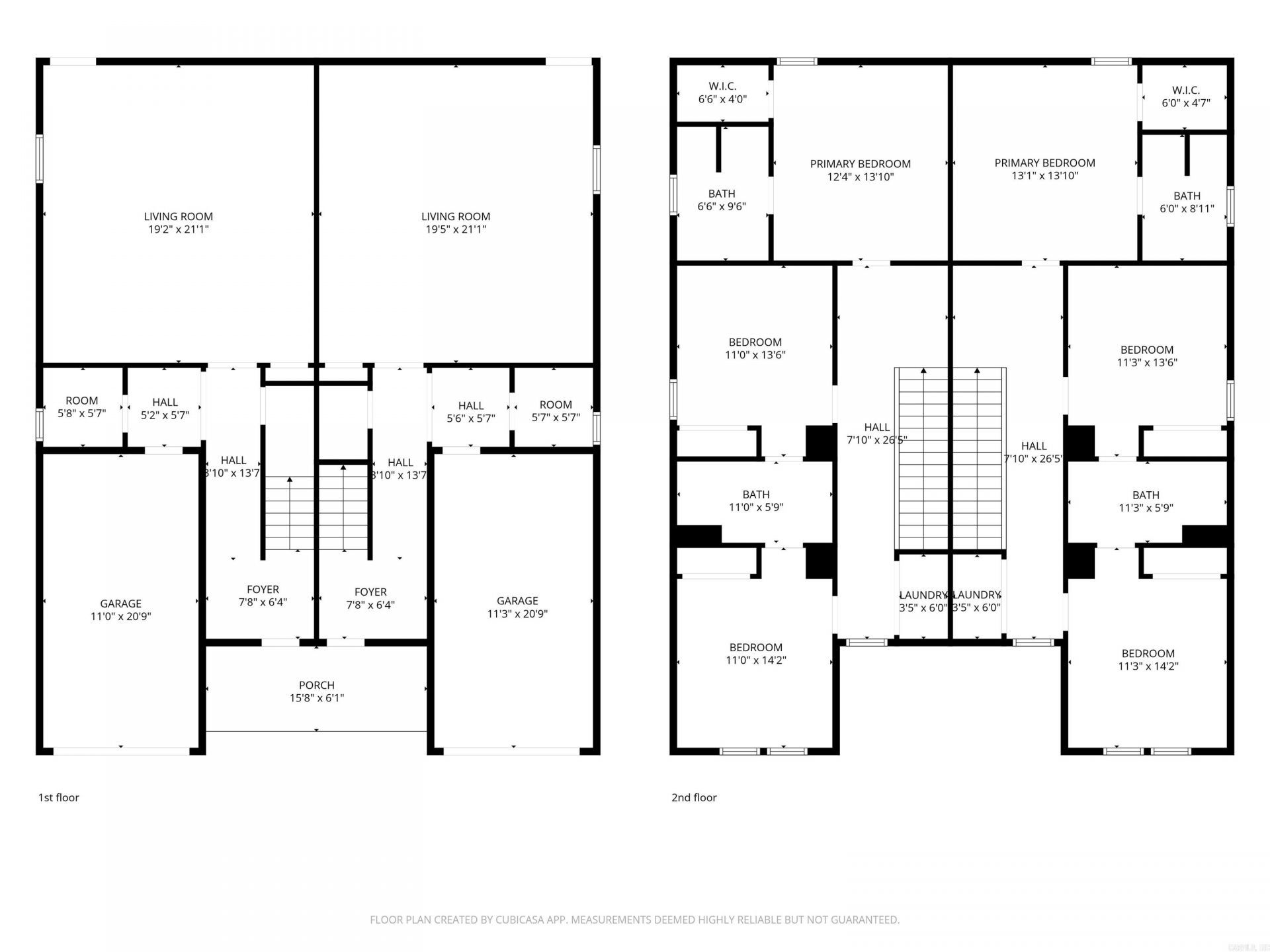
Investment Powerhouse right down the road from Little Rock Air Force Base and a 15 min drive from downtown Little Rock! ALL BRICK/stone NEW CONSTRUCTION DUPLEXES in the heart of Jacksonville! Each unit is 3bed/2 1/2 bath! One car garage opens into the downstairs spacious living area with a half bath for convenience. Upstairs contains primary bedroom at the back with its own bathroom and walk-in closet. The two additional bedrooms have a Jack-and-Jill bathroom between them. Hall laundry makes for the ultimate in convenience! Luxury vinyl throughout and beautiful finishes make this renter-ready! EST COMPLETION May 2026. Would be WONDERFUL for an owner to occupy and rent the other side! SEE AGENT REMARKS

401 & 403 E Center Street | MLS# 26014346

This multi-family property located at 401 & 403 E Center Street , Jacksonville, AR 72076 is currently listed for sale with an asking price of $435,000. Search Jacksonville real estate on www.heberspringsrealestate.com today.

Property Features

Property Type: Multi Unit - Multiple
Cooling: Central
Fenced: Yes
Heating: Central Heat
Home Style: Traditional
Lot Size: 0.17 Acres
Roof Type: Architectural Shingle
Stories: 2.0
Taxes: $14

Amenities

Washer Connection
Dryer Connection-Electric
Hot Water Heater-Electric
Smoke Detector
Breakfast Bar
Closet - Walk In
Fan - Ceiling
Primary Bedroom with Bath
Window Treatments
Fully Fenced
Guttering
Covered
Porch
Wood Fence

Feature Descriptions

Appliance(s)/Kitchen Equipment: Microwave, Electric Range, Dishwasher, Disposal, Ice Maker Connection
Days on Site: 2
Expenses Include: Maint./Lawn Care, Management
Exterior: Brick, Stone
Lot Dimensions: 0.17 acre(s)
Number of 2 Bathroom Unit(s): 2
Number of 3 Bedroom Unit(s): 2
Parking Notes: Garage, One Car
Sewer: Public Sewer
Units: 2
Water: Public Water
Wooded: Yes

Local Schools

High School: Jacksonville
Middle School: Jacksonville
Elementary School: Jacksonville

Listed By / Shown By

Listed By

Agency Name: Fathom Realty Central
Agency Phone: 888-455-6040

Shown By

Agent Name: Boyd Anderson
Agent Phone: Cell: (501) 206-8845
Agency Title: Crye-Leike Real Estate Services

IDX logo

Source: Arkansas MLS

Estimate Your Payment

Estimated Payment

$ 1,096.16 per month $968.12 Principal & Interest $1.17 Property Tax $126.88 Homeowner's Insurance

Change Payment Information

%
years/fixed
yearly
yearly (est.)
(Payments are an estimate and may vary by lender)

Login to My Homefinder

Pixel